Property Description
Property Overview
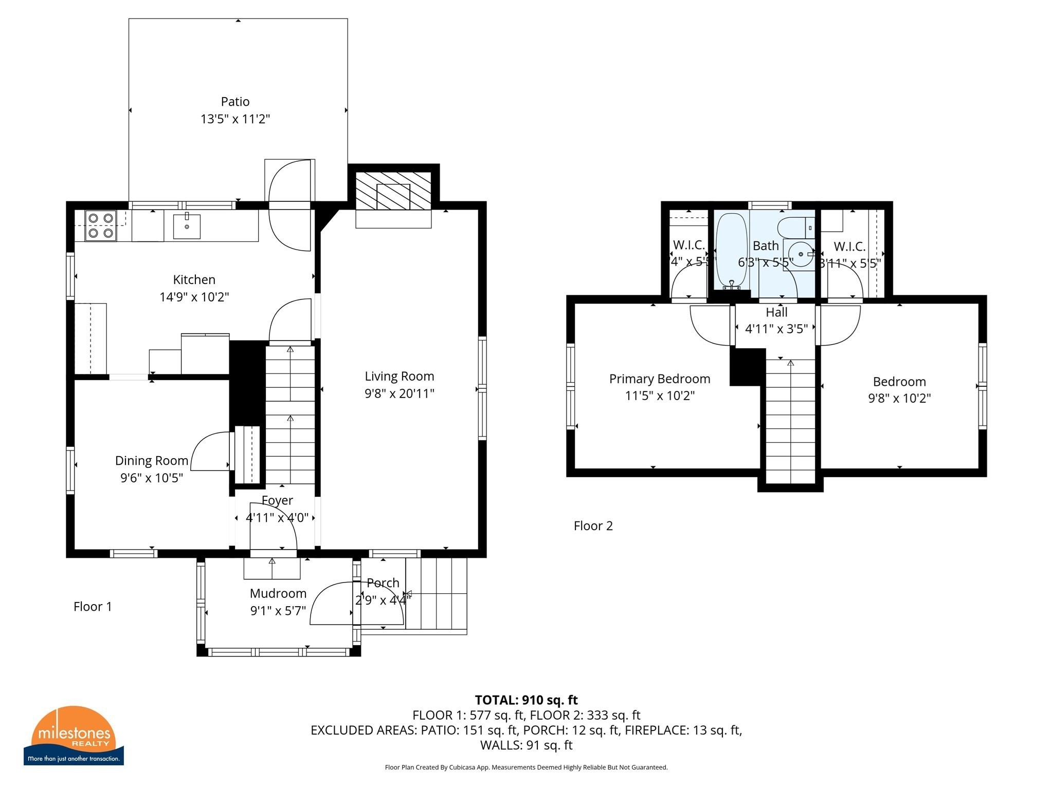
Kitchen, Dining, and Appliances
- Kitchen Dimensions: 10'2"X14'9"
- Countertops - Stone/Granite/Solid, Exterior Access, Flooring - Vinyl
- Dishwasher, Disposal, Dryer - ENERGY STAR, Range, Vent Hood, Washer - ENERGY STAR
- Dining Room Dimensions: 9'6"X10'5"
- Dining Room Features: Closet, Flooring - Hardwood
Bedrooms
- Bedrooms: 2
- Master Bedroom Dimensions: 10'2"X11'5"
- Master Bedroom Level: Second Floor
- Master Bedroom Features: Attic Access, Closet - Walk-in, Flooring - Hardwood
- Bedroom 2 Dimensions: 9'8"X10'2"
- Bedroom 2 Level: Second Floor
- Master Bedroom Features: Closet - Walk-in, Flooring - Hardwood
Other Rooms
- Total Rooms: 5
- Living Room Dimensions: 9'8"X20'11"
- Living Room Features: Fireplace, Flooring - Hardwood, Open Floor Plan
- Laundry Room Features: Concrete Floor, Full, Interior Access, Unfinished Basement
Bathrooms
- Full Baths: 1
- Bathroom 1 Dimensions: 5'5"X6'3"
- Bathroom 1 Level: Second Floor
- Bathroom 1 Features: Bathroom - Full, Bathroom - Tiled With Tub & Shower, Flooring - Stone/Ceramic Tile, Remodeled
Amenities
- Bike Path
- Conservation Area
- Golf Course
- Highway Access
- House of Worship
- Laundromat
- Marina
- Medical Facility
- Park
- Private School
- Public School
- Public Transportation
- Shopping
- Stables
- Swimming Pool
- T-Station
- Tennis Court
- Walk/Jog Trails
Utilities
- Heating: Gas, Steam
- Heat Zones: 1
- Hot Water: Electric
- Cooling: None
- Electric Info: 100 Amps, 220 Volts, Circuit Breakers
- Energy Features: Insulated Windows
- Utility Connections: Washer Hookup, for Electric Dryer, for Electric Range
- Water: City/Town Water
- Sewer: City/Town Sewer
Garage & Parking
- Parking Features: Off-Street, Paved Driveway, Tandem
- Parking Spaces: 2
Interior Features
- Square Feet: 858
- Fireplaces: 1
- Interior Features: Security System
- Accessability Features: No
Construction
- Year Built: 1908
- Type: Detached
- Style: Cape
- Construction Type: Frame
- Foundation Info: Concrete Block, Fieldstone
- Roof Material: Asphalt/Fiberglass Shingles
- UFFI: Unknown
- Flooring Type: Hardwood, Tile, Vinyl
- Lead Paint: Unknown
- Warranty: No
Exterior & Lot
- Lot Description: Cleared, Sloping
- Exterior Features: Fenced Yard, Gutters, Screens, Storage Shed
- Road Type: Paved, Public, Publicly Maint., Sidewalk
- Waterfront Features: River
- Distance to Beach: 1 to 2 Mile
- Beach Ownership: Public
Other Information
- MLS ID# 73451255
- Last Updated: 12/09/25
- HOA: No
- Reqd Own Association: Unknown
- Terms: Contract for Deed
| Date | Event | Price | Price/Sq Ft | Source |
|---|---|---|---|---|
| 12/03/2025 | Active | $499,900 | $583 | MLSPIN |
| 11/29/2025 | Price Change | $499,900 | $583 | MLSPIN |
| 11/08/2025 | Active | $525,000 | $612 | MLSPIN |
| 11/04/2025 | New | $525,000 | $612 | MLSPIN |
Mortgage Calculator
Map & Resources
Fire Station 3 (East Braintree)
Fire Station
0.49mi
Abraham Lincoln Park
Park
0.13mi
William H Parlee Memorial Tot Lot
Playground
0.14mi
Super Petroleum
Gas Station
0.28mi
Braintree Variety
Convenience
0.16mi
Quincy Ave @ Hayward St
0.26mi
Quincy Ave @ Harbor Villa Ave
0.27mi
Quincy Ave opp Dewey Rd
0.28mi
Quincy Ave @ Dewey Rd
0.28mi
Quincy Ave @ Cotton Ave
0.31mi
Quincy Ave opp Cotton Ave
0.33mi
Opp 197 Quincy Ave
0.35mi
Quincy Ave @ Audubon Ave
0.36mi
Nearby Areas
Real Estate Resources
With an unmatched team of professionals dedicated to customer service and responsiveness, you can trust Mark’s to handle every aspect of your move. Get an Estimate!
Seller's Representative: Adam S. Hayes, Milestones Realty
MLS ID#: 73451255
© 2026 MLS Property Information Network, Inc.. All rights reserved.
The property listing data and information set forth herein were provided to MLS Property Information Network, Inc. from third party sources, including sellers, lessors and public records, and were compiled by MLS Property Information Network, Inc. The property listing data and information are for the personal, non commercial use of consumers having a good faith interest in purchasing or leasing listed properties of the type displayed to them and may not be used for any purpose other than to identify prospective properties which such consumers may have a good faith interest in purchasing or leasing. MLS Property Information Network, Inc. and its subscribers disclaim any and all representations and warranties as to the accuracy of the property listing data and information set forth herein.
MLS PIN data last updated at 2025-12-09 10:38:00
