Property Description
Property Overview
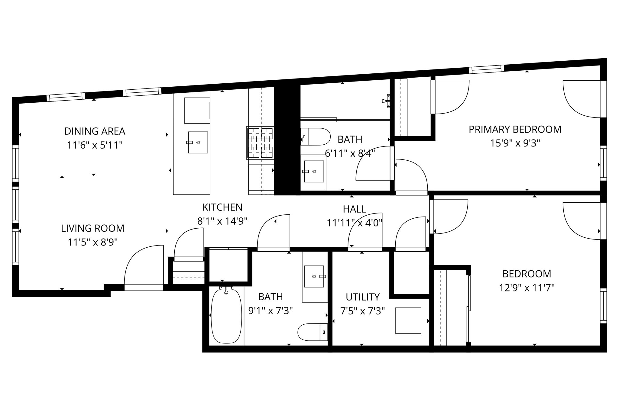
Kitchen, Dining, and Appliances
- Kitchen Level: First Floor
- Dishwasher, Disposal, Freezer, Microwave, Range, Refrigerator, Wall Oven
- Dining Room Level: First Floor
Bedrooms
- Bedrooms: 2
- Master Bedroom Level: First Floor
- Bedroom 2 Level: First Floor
Other Rooms
- Total Rooms: 7
- Living Room Level: First Floor
Bathrooms
- Full Baths: 2
- Master Bath: 1
Amenities
- Amenities: Highway Access, House of Worship, Laundromat, Marina, Medical Facility, Park, Private School, Public School, Public Transportation, Shopping, T-Station, Tennis Court
- Association Fee Includes: Landscaping, Master Insurance, Reserve Funds, Sewer, Snow Removal, Water
Utilities
- Heating: Central Heat
- Heat Zones: 1
- Cooling: Central Air
- Cooling Zones: 1
- Utility Connections: Washer Hookup
- Water: City/Town Water
- Sewer: City/Town Sewer
Unit Features
- Square Feet: 903
- Unit Building: 2
- Unit Level: 2
- Security: Fenced, Intercom
- Floors: 1
- Pets Allowed: No
- Laundry Features: In Unit
- Accessability Features: Unknown
Condo Complex Information
- Condo Name: The Residences At W 8th
- Condo Type: Condo
- Complex Complete: U
- Number of Units: 4
- Elevator: No
- Condo Association: U
- HOA Fee: $162
- Fee Interval: Monthly
Construction
- Year Built: 2025
- Style: Mid-Rise
- Roof Material: Rubber
- Flooring Type: Engineered Hardwood
- Lead Paint: None
- Warranty: No
Exterior & Grounds
- Exterior Features: Balcony
- Pool: No
- Distance to Beach: 1/2 to 1 Mile
- Beach Ownership: Public
Other Information
- MLS ID# 73466236
- Last Updated: 01/11/26
- Documents on File: Floor Plans
| Date | Event | Price | Price/Sq Ft | Source |
|---|---|---|---|---|
| 01/26/2026 | Sold | $832,500 | $887 | MLSPIN |
| 01/11/2026 | Active | $850,000 | $941 | MLSPIN |
| 01/07/2026 | New | $850,000 | $941 | MLSPIN |
| 12/22/2025 | Under Agreement | $850,000 | $905 | MLSPIN |
| 09/29/2025 | Active | $1,750,000 | $930 | MLSPIN |
| 09/29/2025 | Active | $850,000 | $905 | MLSPIN |
| 09/25/2025 | New | $1,750,000 | $930 | MLSPIN |
| 09/25/2025 | New | $850,000 | $905 | MLSPIN |
Mortgage Calculator
Map & Resources
Boston Collaborative High School
Public Secondary School, Grades: 9-12
0.17mi
UP Academy Charter School of Boston
Charter School, Grades: 6-8
0.2mi
Condon K-8 School
Public Elementary School, Grades: PK-8
0.22mi
St. Peter Academy School
Private School, Grades: PK-8
0.23mi
Perkins Elementary School
Public Elementary School, Grades: PK-6
0.31mi
Michael J. Perkins Elementary School
Public School, Grades: K-5
0.31mi
Joseph M. Tierney Learning Center
Grades: PK-K
0.35mi
City Auto School
Driving School
0.33mi
Stats Bar & Grille
Bar
0.44mi
Cannonball Cafe
Cafe
0.18mi
Broadway's Pastry & Coffee Shop
Coffee Shop
0.32mi
Caffè Nero
Coffee Shop
0.34mi
Olga's Kafe
Cafe
0.35mi
Pizza Pie-er
Pizzeria
0.07mi
Doughboy Donuts & Deli
Pizza & Donut & Sandwich & Coffee (Fast Food)
0.38mi
JP Licks
Ice Cream Parlor
0.3mi
Boston Police Department South Boston Neighborhood Station
Local Police
0.42mi
MBTA Transit Police Headquarters
Police
0.59mi
Boston Fire Department Engine 39, Ladder 18
Fire Station
0.35mi
Rock Spot Climbing
Fitness Centre. Sports: Climbing
0.2mi
PKL Boston
Sports Centre. Sports: Pickleball, Shuffleboard, Cornhole
0.17mi
Thomas Park
National Park
0.37mi
Joe Moakley Park
Municipal Park
0.4mi
Flaherty Park
Park
0.46mi
Sweeney Playground
Playground
0.17mi
Buckley Playground
Playground
0.37mi
TD Bank
Bank
0.3mi
Bank of America
Bank
0.38mi
Mass Bay Credit Union
Bank
0.39mi
City of Boston Credit Union
Bank
0.41mi
Thai Spa West Broadway
Massage
0.39mi
Speedway
Gas Station
0.08mi
Southie Gas
Gas Station. Self Service: Yes
0.44mi
Speedway
Convenience
0.09mi
Tedeschi food shops
Convenience
0.36mi
J&J Mini-Mart
Convenience
0.4mi
Foodie's Market
Supermarket
0.33mi
W 7th St @ E St
0.07mi
W 7th St @ D St
0.08mi
W 7th St @ D St
0.09mi
W 6th St @ D St
0.12mi
W 6th St @ E St
0.13mi
W 7th St @ C St
0.16mi
W 7th St @ F St
0.16mi
W 7th St @ C St
0.17mi
Nearby Areas
Seller's Representative: Ben Resnicow, Commonwealth Standard Realty Advisors
MLS ID#: 73466236
© 2026 MLS Property Information Network, Inc.. All rights reserved.
The property listing data and information set forth herein were provided to MLS Property Information Network, Inc. from third party sources, including sellers, lessors and public records, and were compiled by MLS Property Information Network, Inc. The property listing data and information are for the personal, non commercial use of consumers having a good faith interest in purchasing or leasing listed properties of the type displayed to them and may not be used for any purpose other than to identify prospective properties which such consumers may have a good faith interest in purchasing or leasing. MLS Property Information Network, Inc. and its subscribers disclaim any and all representations and warranties as to the accuracy of the property listing data and information set forth herein.
MLS PIN data last updated at 2026-01-11 03:07:00
