Property Description
Property Overview
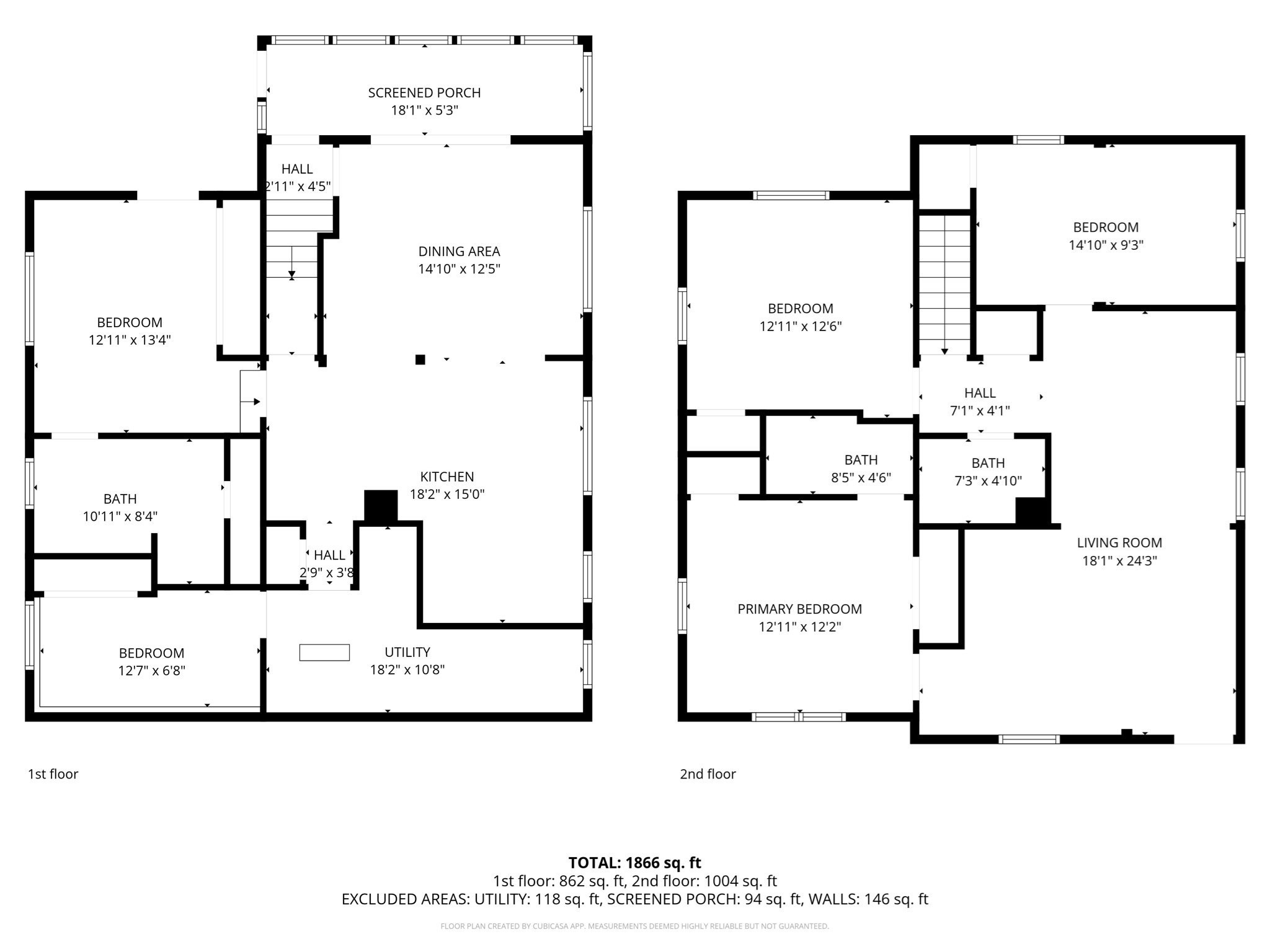
Kitchen, Dining, and Appliances
- Kitchen Level: First Floor
- Dishwasher, Range, Refrigerator, Vent Hood
- Dining Room Level: First Floor
Bedrooms
- Bedrooms: 4
- Master Bedroom Level: Second Floor
- Bedroom 2 Level: Second Floor
- Bedroom 3 Level: Second Floor
Other Rooms
- Total Rooms: 8
- Living Room Level: Second Floor
- Laundry Room Features: Full
Bathrooms
- Full Baths: 3
- Master Bath: 1
- Bathroom 1 Level: Second Floor
- Bathroom 2 Level: Second Floor
- Bathroom 3 Level: First Floor
Amenities
- Highway Access
- Medical Facility
- Public School
- Public Transportation
- Shopping
- T-Station
Utilities
- Heating: Central Heat, Ductless Mini-Split System, Gas, Hot Water Baseboard
- Heat Zones: 8
- Hot Water: Natural Gas
- Cooling: Ductless Mini-Split System
- Cooling Zones: 7
- Electric Info: 220 Volts, Circuit Breakers
- Energy Features: Insulated Doors, Insulated Windows
- Utility Connections: for Electric Range
- Water: City/Town Water
- Sewer: City/Town Sewer
Garage & Parking
- Parking Features: Off-Street, Paved Driveway
- Parking Spaces: 6
Interior Features
- Square Feet: 2270
- Accessability Features: Unknown
Construction
- Year Built: 1903
- Type: Detached
- Style: Colonial
- Construction Type: Frame
- Foundation Info: Poured Concrete
- Roof Material: Asphalt/Fiberglass Shingles
- Flooring Type: Hardwood, Tile
- Lead Paint: Unknown
- Warranty: No
Exterior & Lot
- Lot Description: Cleared, Fenced/Enclosed
- Exterior Features: Fenced Yard, Storage Shed
- Road Type: Paved, Public
Other Information
- MLS ID# 73463010
- Last Updated: 02/06/26
- HOA: No
- Reqd Own Association: Unknown
| Date | Event | Price | Price/Sq Ft | Source |
|---|---|---|---|---|
| 02/06/2026 | Active | $699,000 | $308 | MLSPIN |
| 02/02/2026 | Price Change | $699,000 | $308 | MLSPIN |
| 12/22/2025 | Active | $729,900 | $322 | MLSPIN |
| 12/18/2025 | New | $729,900 | $322 | MLSPIN |
Mortgage Calculator
Map & Resources
Immaculate Conception School
School
0.15mi
Maria Weston Chapman Middle School
Public Middle School, Grades: 5-8
0.26mi
Lawrence W Pingree School
Public Elementary School, Grades: K-5
0.27mi
Jefferson School
School
0.33mi
Abigail Adams School
Public School, Grades: 5 - 8
0.41mi
Gio's Roast Beef & Pizza
Pizzeria
0.32mi
The Next Page
Restaurant
0.35mi
Weymouth Fire Department
Fire Station
0.11mi
American Kempo Karate Academy
Fitness Centre. Sports: Karate
0.32mi
Robert S. Hoffman Park
Municipal Park
0.12mi
Lovell Field
Municipal Park
0.26mi
Osprey Overlook Park
Municipal Park
0.39mi
Stephen Rennie Herring Run Park
Park
0.43mi
Great Esker Park
Municipal Park
0.45mi
Pelagio Salon & Spa
Spa
0.26mi
Impressions Hair Salon
Hairdresser
0.28mi
Dave's Barber Shop
Hairdresser
0.28mi
Stylz by Steffanie
Hairdresser
0.29mi
IDesign Hair Company
Hairdresser
0.3mi
Noreen's Finally Hair
Hairdresser
0.32mi
Mr Robert's Hair Studio
Hairdresser
0.34mi
Kathy's Nails
Nail Salon
0.34mi
Weymouth Market
Convenience
0.24mi
Middle Street Variety
Convenience
0.32mi
7-Eleven
Convenience
0.45mi
Broad St @ Madison St
0.1mi
Broad St @ Fairmount Ave
0.11mi
617 Broad St
0.13mi
Opp 617 Broad St
0.14mi
Broad St @ Hillcrest Rd
0.14mi
Broad St opp Hillcrest Rd
0.15mi
Broad St @ Cottage St
0.19mi
Broad St @ Cain Ave
0.21mi
Nearby Areas
Real Estate Resources
With an unmatched team of professionals dedicated to customer service and responsiveness, you can trust Mark’s to handle every aspect of your move. Get an Estimate!
Seller's Representative: Darcilane Oliveira, The Neighborhood Realty Group
MLS ID#: 73463010
© 2026 MLS Property Information Network, Inc.. All rights reserved.
The property listing data and information set forth herein were provided to MLS Property Information Network, Inc. from third party sources, including sellers, lessors and public records, and were compiled by MLS Property Information Network, Inc. The property listing data and information are for the personal, non commercial use of consumers having a good faith interest in purchasing or leasing listed properties of the type displayed to them and may not be used for any purpose other than to identify prospective properties which such consumers may have a good faith interest in purchasing or leasing. MLS Property Information Network, Inc. and its subscribers disclaim any and all representations and warranties as to the accuracy of the property listing data and information set forth herein.
MLS PIN data last updated at 2026-02-06 03:05:00
